Apartments for rent 80 sqm excellent condition, Poggibonsi, locality poggibonsi

Tuscany Siena Poggibonsi Ref. SME-2411
+

APARTMENT RENTAL

Price
€ 750
Type
Rent
Category
Apartments
Destination
Residential
Region
Tuscany
City
Siena
Town
Poggibonsi
Locality
poggibonsi
Area
80 sqm
Rooms
3
Bedrooms
2
Bathrooms
1

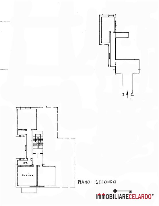
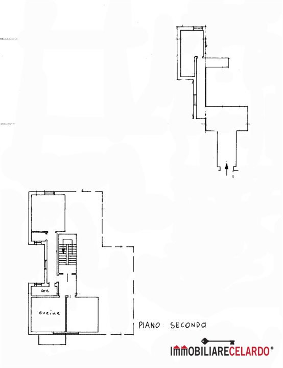
FOR RENT in the Municipality of Poggibonsi (SI), in a semi-central area and close to services, APARTMENT of 80 square meters on the second floor without elevator.
The property is composed as follows:
entrance, living room / kitchen, two bedrooms, bathroom, closet and terrace of 4 square meters
On the ground floor there is a cellar of 8 square meters.
The furnishings are all new, assembled on March 31, 2026.
The second room (currently unfurnished) can be used as a living room or as a second bedroom.
In case you prefer to furnish the empty room with a sofa, the property will be available within 20 days of signing the lease.
In the event that you prefer to use the empty room as a double room, the property will be available within 60 days of signing the lease.
€750 per month including condominium fees.

Energy class G.

Our agency is structured to provide you, free of charge, assistance for the application of mortgage, notary, technicians and whatever you need through the banking institutions and professionals who collaborate with us.
www.immobiliarecelardo.it

Energy Class:

Features

Conditions: Excellent Condition
Heating: Autonomous
Floor: 2 - plans building: 3
Furnished: Furnished
Terrace: Yes Sqm 4

Floor Plans

APARTMENT RENTAL - 1

Map

Welcome! Click on one of our assistants to send a message, they will reply as soon as possible.

Chat via WhatsApp