Apartments for sale 60 sqm, Poggibonsi, locality poggibonsi

Tuscany Siena Poggibonsi Ref. FHU-2351
+

Apartment in a residential area

Price
€ 115.000
Type
Sale
Category
Apartments
Destination
Residential
Region
Tuscany
City
Siena
Town
Poggibonsi
Locality
poggibonsi
Area
60 sqm
Rooms
2
Bedrooms
1
Bathrooms
1

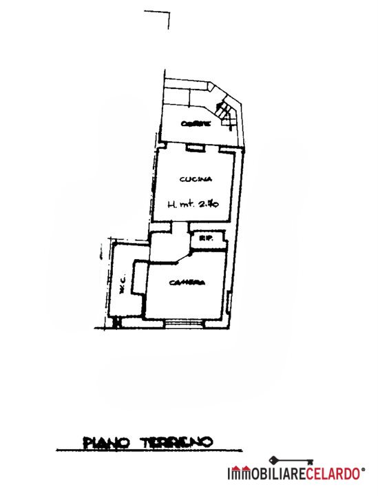
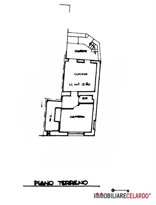
For sale in the Municipality of Poggibonsi (SI), 1km from the historic center, APARTMENT on the ground floor of 60 square meters.
The property is composed as follows:
living room / kitchen, a double bedroom, bathroom and closet.
An exclusive parking space and a courtyard of 8 square meters are pertinent.
The property has been recently renovated.
Energy class G.

Our agency is structured to provide you, free of charge, assistance for the application of mortgage, notary, technicians and whatever you need through the banking institutions and professionals who collaborate with us.
www.immobiliarecelardo.it

Energy Class:

Features

Conditions: Renovated
Heating: Autonomous
Parking: Car Exterior
Garden Sqm: 8 Private
Floor: Piano Terra - plans building: 2

Floor Plans

Apartment in a residential area - 1
Apartment in a residential area - 2
Apartment in a residential area - 3

Map

Welcome! Click on one of our assistants to send a message, they will reply as soon as possible.

Chat via WhatsApp