Capannoni e laboratori in vendita 760 m² ottime condizioni, Monteriggioni, località monteriggioni

Toscana Siena Monteriggioni Rif. AEC-2321
+

capannone e appartamento

Prezzo
€ 550.000
Contratto
Vendita
Tipologia
Capannoni e laboratori
Destinazione
Commerciale
Regione
Toscana
Provincia
Siena
Comune
Monteriggioni
Località
monteriggioni
Superficie
760 m²
Locali
5
Bagni
4

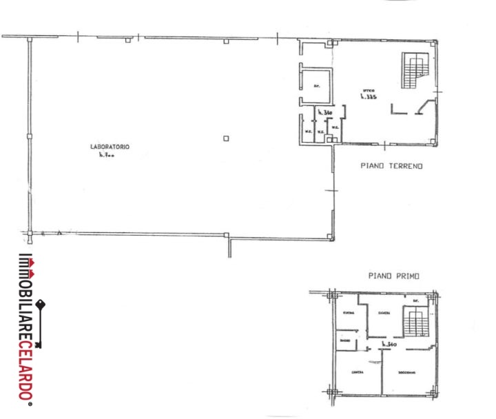
Vendesi nel Comune di Monteriggioni (SI), nei pressi dell'uscita Siena/Firenze, CAPANNONE di mq 760 (di cui mq 650 il capannone posto al piano terra con altezza 6 metri + mq 110 un appartamento posto al p1) con ampio piazzale.
Classe energetica in lavorazione.

La nostra agenzia è strutturata per fornirvi, gratuitamente, assistenza per la richiesta di mutuo, notaio, tecnici e quanto necessario tramite gli istituti bancari ed i professionisti ch collaborano con noi.

www.immobiliarecelardo.it

Classe Energetica: N.D.

Caratteristiche

Condizioni: Ottime Condizioni
Riscaldamento: Autonomo
Parcheggio: Cortile Privato
Piano: Multipiano - piani edificio 2
Altezza: 6 mt.
Reception: Si
 

Planimetrie

capannone e appartamento - 1
capannone e appartamento - 2

Mappa

Benvenuto! Clicca su uno dei nostri assistenti per inviare un messaggio, vi risponderanno il prima possibile.

Chat via WhatsApp